Loom Building, Harrison Street, Ancoats M4
- 2
- 1
- 2
- Leasehold
Key Features:
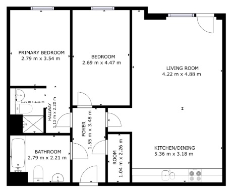
- Stunning two-bedroom apartment
- Generously sized bedrooms
- Main bedroom with ensuite shower room
- Kitchen with integral appliances
- Living room with balcony
- Located on the edge of Ancoats
- 0.3 miles from Cutting Room Square
- Piccadilly Station is within 0.6 miles
- EW1S form in place
- Currently tenanted until 27.02.2026 at £1200 PCM
Description:
Stylish 2-bed apartment in Ancoats with balcony, ensuite, open-plan living, and modern kitchen. Tenanted at £1200 PCM until Feb 2026. Leasehold, 242 years left. Price: £245,000. Stylish Two Bedroom Apartment in Ancoats. one of Manchester’s most sought-after locations. EW1S form in place. Discover modern city living in this stunning apartment set in vibrant Ancoats, renowned as one of Manchester’s most desirable areas. The property offers a bright, spacious open-plan living area and a private balcony for relaxing outdoors. The contemporary kitchen comes fully equipped with sleek appliances and ample storage. Two generously sized bedrooms include a luxurious main bedroom with an ensuite wet-room, plus a second double bedroom. With shops, restaurants, and excellent transport links on your doorstep, this is a rare opportunity to secure a stylish home in the heart of Manchester’s trendiest district. Currently tenanted until 27.02.2026 at £1200 PCM EW1S The EW1S form has been issued on 24th February 2021 and rated B1 Service Charge Insurance Fund for period 25 Sep to 24 Dec 2025 £101.23 Service Charge - Block for period 25 Sep to 24 Dec 2025 £619.69 Ground Rent Ground rent is payable in respect of the period 1 Jan 2025 to 31 Dec 2025 £250 Tenancy Details The apartment is currently tenanted until 27.02.2026 @£1200 PCM Material Information Part A: Essential Information Price: £245,000 Tenure: Leasehold - 242 years remaining to 14.09.2267 Council Tax Band: C Service Charge Information: Awaiting confirmation IRO £2016 PA Ground Rent: Awaiting confirmation IRO £250 PA Compliance Checks Please note: To ensure that we comply with HMRC anti-money laundering regulations, we outsource our buyer compliance check, for which there is a charge of £54 (including VAT) per person. This will apply should you agree an offer on a property with Maddox Noel. This fee covers the cost of mandatory identity verification, anti-money laundering, and source-of-funds checks, including third-party processing and administrative handling.
Disclaimer
These property details are prepared to provide a fair and accurate description; however, no guarantee is given regarding accuracy or completeness. Measurements, floor plans and photographs are approximate and for guidance only. Prospective buyers/tenants should verify all information independently, including services, boundaries, planning permissions, and council tax, and should inspect the property in person before making any decisions. These particulars do not form part of any contract, and appliances or systems have not been tested.
Please note: To comply with HMRC anti‑money laundering regulations, Maddox Noel outsources buyer compliance checks. A fee of £54 (including VAT) per person applies if you agree an offer on a property through us. This covers mandatory identity verification, anti‑money laundering checks, source‑of‑funds assessments, third‑party processing, and associated administration.














